埼玉県幸手市東2-19-22 (幸手) ドラッグストアセキ幸手店 詳細データ
この物件の物件番号は4909です。お電話(03-6260-6586)でお問合せの際は物件番号をお知らせ下さい。「埼玉オフィスMOVEを見て」とお伝えいただくと話がスムーズに進みます。※不動産業者様へのご紹介は不可です。
| 物件名 | ドラッグストアセキ幸手店 |
|---|---|
| 沿線/駅 | 東武日光線 幸手駅 |
| バス/徒歩 | バス:- / 徒歩:8 分 |
| 所在地 | 埼玉県幸手市東2-19-22 |
| 所在階 | -/2 階 |
| 面積 | 242.63 坪 |
| 賃料(坪・円) | 坪 4,534 円 (総額 1,100,000 円) |
| 共益費 | |
| 礼金 | 2 ヶ月 |
| 敷金 | 6 ヶ月 |
| 保証金 | |
| 竣工年 | 1988 年 |
| 建物構造 | 鉄骨造 |
| 駐車場設備 | 有無料空き26台 |
| 契約期間 | 3 年 |
| 入居可能日 | 相談 |
| 備考 | 居抜き24時間利用可土曜日利用可土日・祝日利用可大型トラック搬入可 条件交渉ご相談ください。 |
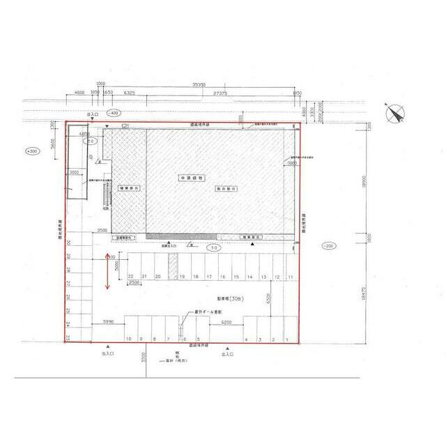
・1階:641.44?(194.03坪)(店舗)・2階:160.65?(48.59坪)(事務所)・検査済証無し。・用途変更不可(主要用途:店舗)・分割貸し相談可能。・ドラッグストア不可。・エアコン・照明残置相談可能。・営業中の為、取り扱いにはご注意下さい。
![]() |
|---|
|
埼玉県幸手市東2-19-22の賃貸事務所(貸事務所)・貸店舗をお探しのお客様へご案内-このたびは首都圏最大級、貸事務所・貸店舗専門ポータルサイトの埼玉オフィスMOVEをご利用いただき誠に有り難うございます。事務所移転、飲食店開業や新規独立まで賃貸事務所・賃貸オフィス・貸店舗の仲介実績豊富なスタッフがフルサポート致します。埼玉県幸手市東2-19-22の大型駐車場付貸事務所、重飲食、美容院や居抜き店舗、レンタルオフィスまで貸事務所(賃貸事務所)、貸店舗を簡単に検索できます!埼玉県幸手市東2-19-22でSOHO、賃貸オフィス、一棟ビルの貸事務所の貸主・オーナー様には無料にて広告掲載いたしますので是非、お問い合わせください。その他、埼玉県幸手市東2-19-22で貸事務所・貸店舗をお探しのテナント様にはフリーレント、引越しサービスやオフィスレイアウトもアドバイス出来ますのでご相談ください。 |












