埼玉県坂戸市薬師町21-1 (北坂戸) 北坂戸 店舗 詳細データ
この物件の物件番号は5038です。お電話(03-6260-6586)でお問合せの際は物件番号をお知らせ下さい。「埼玉オフィスMOVEを見て」とお伝えいただくと話がスムーズに進みます。※不動産業者様へのご紹介は不可です。
| 物件名 | 北坂戸 店舗 |
|---|---|
| 沿線/駅 | 東武東上線 北坂戸駅 |
| バス/徒歩 | バス:- / 徒歩:8 分 |
| 所在地 | 埼玉県坂戸市薬師町21-1 |
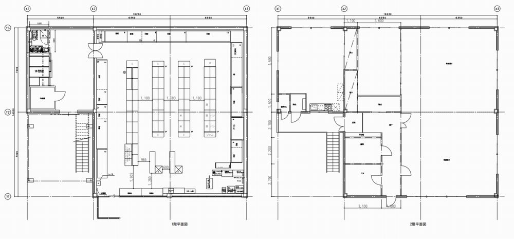
| 所在階 | -/2 階 |
| 面積 | 131.86 坪 |
| 賃料(坪・円) | 坪 3,337 円 (総額 440,000 円) |
| 共益費 | |
| 礼金 | 1 ヶ月 |
| 敷金 | 6 ヶ月 |
| 保証金 | |
| 竣工年 | 1986 年 |
| 建物構造 | 鉄骨造 |
| 駐車場設備 | 有 |
| 契約期間 | 10 年 |
| 入居可能日 | 即日 |
| 備考 | 前面駐車場付 トイレ 流し台 駐車スペース |
![]() |
|---|
|
埼玉県坂戸市薬師町21-1の賃貸事務所(貸事務所)・貸店舗をお探しのお客様へご案内-このたびは首都圏最大級、貸事務所・貸店舗専門ポータルサイトの埼玉オフィスMOVEをご利用いただき誠に有り難うございます。事務所移転、飲食店開業や新規独立まで賃貸事務所・賃貸オフィス・貸店舗の仲介実績豊富なスタッフがフルサポート致します。埼玉県坂戸市薬師町21-1の大型駐車場付貸事務所、重飲食、美容院や居抜き店舗、レンタルオフィスまで貸事務所(賃貸事務所)、貸店舗を簡単に検索できます!埼玉県坂戸市薬師町21-1でSOHO、賃貸オフィス、一棟ビルの貸事務所の貸主・オーナー様には無料にて広告掲載いたしますので是非、お問い合わせください。その他、埼玉県坂戸市薬師町21-1で貸事務所・貸店舗をお探しのテナント様にはフリーレント、引越しサービスやオフィスレイアウトもアドバイス出来ますのでご相談ください。 |












